Loading...

Punat

Casa Punat, 473,35m2

750.000 €

Casa Punat, 473,35m2 Nel pieno centro di Punat, a soli 200 metri dal mare, è in vendita un edificio indipendente con permesso di costruzione valido per una completa ristrutturazione e trasformazione in boutique hotel con piscina. Si tratta di un’opportunità d’investimento eccezionale che unisce una posizione privilegiata a un moderno concetto di ospitalità di alto livello.

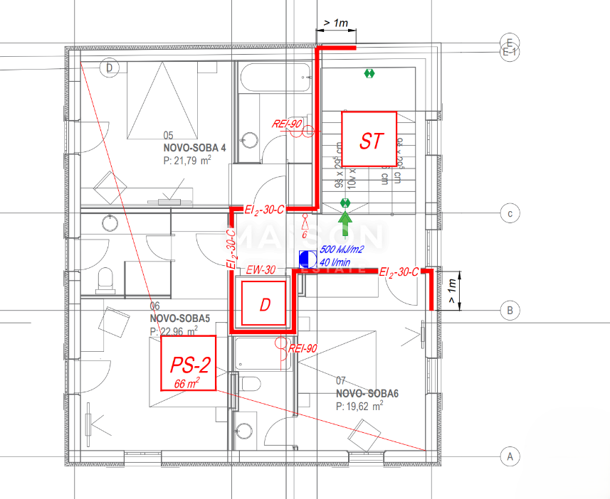
Il progetto prevede una distribuzione degli spazi accuratamente progettata su più livelli. Il piano interrato comprende cucina, taverna/cantina vini, deposito, spogliatoi e servizi igienici per il personale. Il piano terra è concepito come area centrale con reception, spazi aggiuntivi per il personale, servizi per gli ospiti, bar e ampia sala da pranzo. Al primo e secondo piano sono previste tre camere per piano, mentre nel sottotetto è progettato un ampio appartamento, per un totale di sei camere e un appartamento.

L’area esterna è pensata come zona relax con piscina a sfioro di 28 mq dotata di pompa di calore, permettendo un utilizzo prolungato durante l’anno e aumentando il valore della proprietà.

Questa proprietà rappresenta una rara opportunità per sviluppare un progetto turistico esclusivo nel centro del paese, con tutta la documentazione pronta, che accelera notevolmente l’avvio dei lavori.

Contattateci per maggiori informazioni o per organizzare una visita.

REC ID: 1280518

Caratteristiche

  • 473 m2
  • 325 m2
  • 12 bagni
  • 13 stanze
  • 200 m dal mare
  • Prima fila dal mare

Agenzia

Logo dell'agenzia

MAISON REAL ESTATE

Agente

Barbara Popović

Cell: +385 91 925 9816

Agencija logo
+
=
REC Kuće Biz
Dogma LUXURY ESCAPE
Bonum Real Estate Croatia
Opatia Riviera Real Estate by SmartInvest
Terra Dalmatica Real Estate
IMMO - real estate agency Split
Kaiser Immobilien Opatija
Search for you