Loading...

Pješčana Uvala

Appartamenti di lusso in vendita in una posizione esclusiva, Pješčana uvala, Pola!

535.000 €

Appartamenti di lusso in vendita in una posizione esclusiva, Pješčana uvala, Pola! Nuovo Progetto di Lusso, Pješčana Uvala!

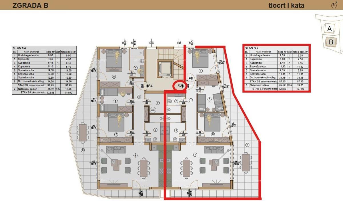
Il progetto in costruzione è composto da due edifici, ciascuno con tre piani e due appartamenti per piano.

L'appartamento S3 si trova al primo piano dell'edificio B, con una superficie totale di 126,85 m² (superficie netta di 107 m²). È composto da un ingresso con guardaroba, 3 camere da letto, 2 bagni, un soggiorno con cucina e zona pranzo e un ampio balcone coperto di 39,70 m², accessibile da tutte le stanze e con una splendida vista sul mare.

L'appartamento dispone di 2 posti auto, che devono essere acquistati separatamente.

Per ulteriori informazioni, si prega di contattare:

Azra
+385 91 611 5706
+385 98 420 885
azra@almadominvest.com

REC ID: 1262202

Caratteristiche

  • 126 m2
  • 2 bagni
  • 1 garage
  • 3 stanze
  • 1 piano
  • Vista mare

Agenzia

Logo dell'agenzia

Alma Dom - Real Estate

Agente

Azra Valjevac

Cell: +385916115706

Agencija logo
+
=
REC Kuće Biz
Dogma LUXURY ESCAPE
Bonum Real Estate Croatia
Opatia Riviera Real Estate by SmartInvest
Terra Dalmatica Real Estate
IMMO - real estate agency Split
Kaiser Immobilien Opatija
Search for you