Loading...

Poreč

Newly built apartment, ground floor

250.000 €

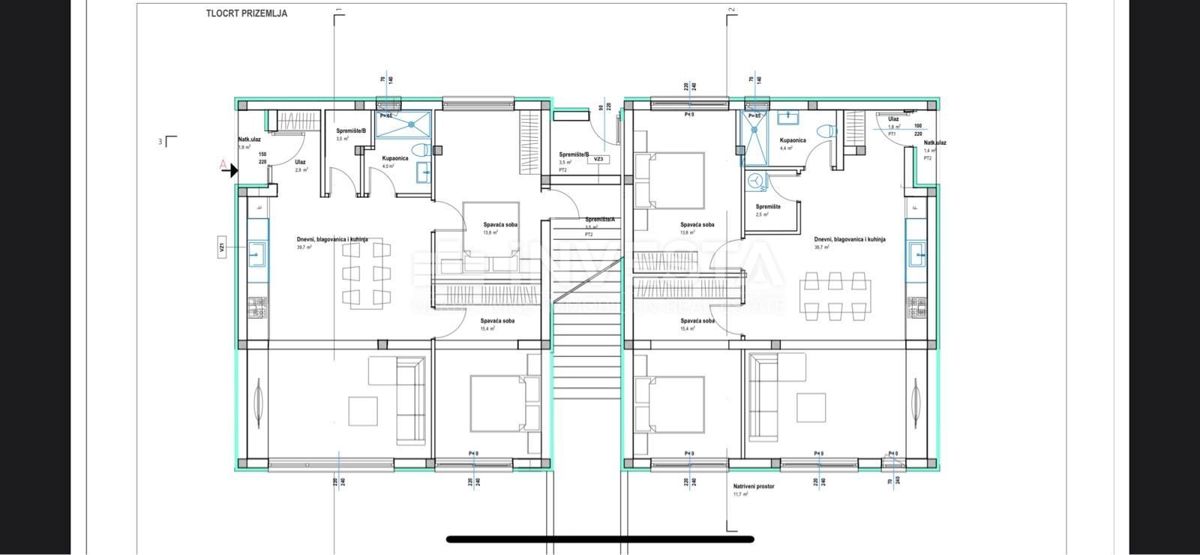
Newly built apartment, ground floor Construction has started on a smaller residential building with a total of four units, within which two ground-floor apartments are available, one on the left and one on the right.

The apartment with a total area of 76 m² is designed with an emphasis on functionality and comfort.

It consists of a covered entrance, hallway, two bedrooms (one with a private walk-in wardrobe), bathroom, utility room, and an open-plan living room with kitchen and dining area, which opens onto a spacious terrace and garden.

This apartment also includes a garden of approx. 200 m² and two parking spaces.

Special emphasis is placed on technical features and equipment:

electric underfloor heating in all rooms
air conditioning system for heating and cooling
modern construction focused on energy efficiency
high-quality joinery and insulation (in line with new builds)

A very attractive micro-location, only about 300 meters from the town center, and a five-minute drive to the center of Poreč.

REC ID: 1286533

Features

  • 76 m2
  • 200 m2
  • 1 bathroom
  • 2 rooms
  • 7000 m from the sea

Agency

Agency logo

INVESTA Real Estate

Agent

Aleksandar Bruić

Mobile: +385 98 192 7301

Agencija logo
+
=
REC Kuće Biz
Dogma LUXURY ESCAPE
Bonum Real Estate Croatia
Opatia Riviera Real Estate by SmartInvest
Terra Dalmatica Real Estate
IMMO - real estate agency Split
Kaiser Immobilien Opatija
Search for you