Loading...

Šišan

Pula area, 825 m² building plot with project and pool

135.000 €

Pula area, 825 m² building plot with project and pool In a quiet, well-kept area of Šišan, only about 2 km from the sea and unspoiled natural beaches, this 825 m² building plot of regular rectangular shape is an excellent choice for a family home, holiday house or a villa with a pool. A key advantage is that the main design project is already in progress and includes a modern two-storey home with a swimming pool—giving the future owner a strong head start and a clear plan for quick construction.

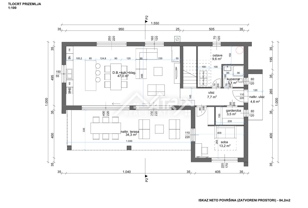
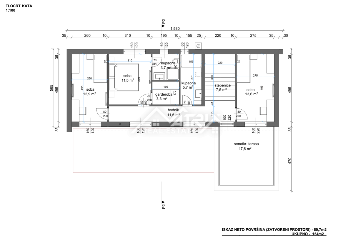
According to the project, the house is planned on two levels with a pool. The ground floor features an open-plan kitchen, dining and living area, plus a storage room, a bathroom, and one bedroom with a separate walk-in wardrobe. The net area of the ground floor is 84 m², complemented by a 34 m² covered terrace that naturally connects the interior with the garden and pool area. The first floor provides three bedrooms, two bathrooms and an additional separate wardrobe, with a net area of 70 m², plus an uncovered terrace of 17.6 m²—ideal for privacy and relaxation. Two parking spaces are also planned on the plot.

Electricity and water are available nearby, and access to the plot is secured. The location offers peace and privacy while remaining well connected to Pula and Medulin, making it attractive both for private use and as a tourism investment. If you are looking for a building plot near Pula with a project for a house with a pool, this Šišan property is a rare and highly practical opportunity.

REC ID: 1268102

Features

  • 825 m2
  • First row by the sea

Agency

Agency logo

Matrix Real Estate

Agent

Ivana Mohorović

Mobile: +385 95 370 44 46

Agencija logo
+
=
REC Kuće Biz
Dogma LUXURY ESCAPE
Bonum Real Estate Croatia
Opatia Riviera Real Estate by SmartInvest
Terra Dalmatica Real Estate
IMMO - real estate agency Split
Kaiser Immobilien Opatija
Search for you