Loading...

Kaštel Stari

KAŠTEL STARI*** Business space with bathroom and two rooms + garden

150.000 €

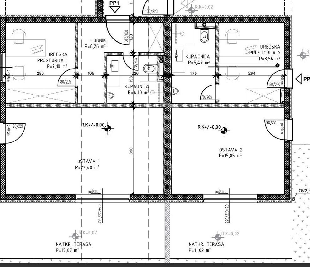
KAŠTEL STARI*** Business space with bathroom and two rooms + garden We are offering commercial space on the ground floor of a residential and commercial building under construction in Kaštel Stari.
The space consists of a hallway, a bathroom with a toilet of 5.47 m2, office space 1 of 8.56 m2, office space 2 of 15.85 m2, and a covered terrace of 11.02 m2.
It has a garden of 74 m2, as well as two covered outdoor parking spaces.
Construction will begin in early 2026, and the completion date is 18 months from the start of construction.
The commercial space will be equipped with ceramic tiles worth up to €25.00/m², as well as air conditioning, underfloor heating will be installed in the bathroom, while sanitary equipment will be worth up to €1,500.00. All external openings will be equipped with mosquito nets and electric shutters.
For more information, contact the agent.

REC ID: 1246697

Features

  • 42 m2
  • 1 bathroom

Agency

Agency logo

Domus Trogir

Agent

Ivan Dujić

Mobile: +385997949786

Agencija logo
+
=
REC Kuće Biz
Dogma LUXURY ESCAPE
Bonum Real Estate Croatia
Opatia Riviera Real Estate by SmartInvest
Terra Dalmatica Real Estate
IMMO - real estate agency Split
Kaiser Immobilien Opatija
Search for you