Loading...

Okrug Gornji

OKRUG GORNJI*** Two-room apartment on the second floor with a roof terrace, S24

322.316 €

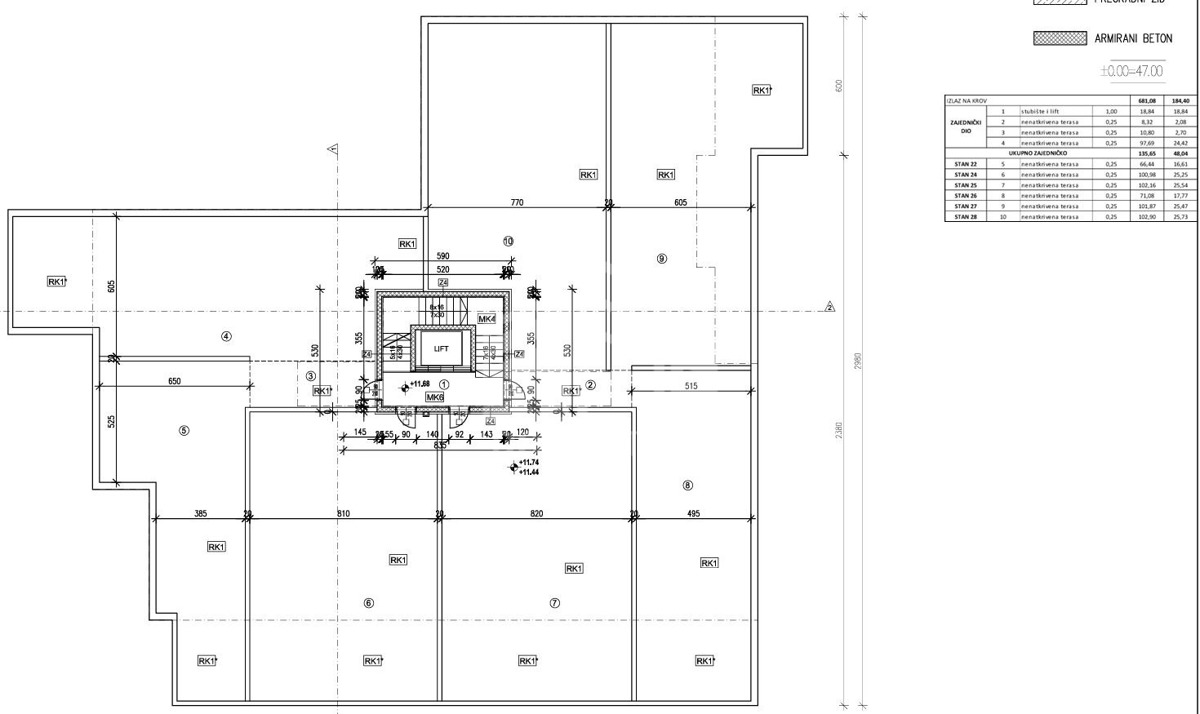
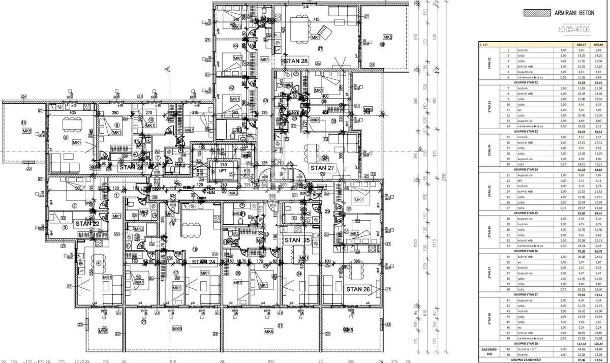
OKRUG GORNJI*** Two-room apartment on the second floor with a roof terrace, S24 We are offering for sale a two-bedroom apartment under construction in Okrug Gornji. The apartment code is "STAN 24".
The apartment consists of a hallway, two bedrooms, a living room with a kitchen and dining room, a bathroom, and a loggia. You can see the detailed square footage in the floor plan.
It has a walk-through roof terrace of 100.98 m2.
The building is under construction, and completion is scheduled for summer 2026.
Price of an outdoor parking space: 5000 EUR.
The construction is taking place in a quiet and safe location ideal for permanent residence, year-round or tourist rental.
For more information, contact the agent.

REC ID: 1197973

Features

  • 92 m2
  • 1 bathroom
  • 2 rooms
  • 2 floors

Agency

Agency logo

Domus Trogir

Agent

Ivan Dujić

Mobile: +385997949786

Agencija logo
+
=
REC Kuće Biz
Dogma LUXURY ESCAPE
Bonum Real Estate Croatia
Opatia Riviera Real Estate by SmartInvest
Terra Dalmatica Real Estate
IMMO - real estate agency Split
Kaiser Immobilien Opatija
Search for you