Loading...

Buje

ISTRIEN, BUJE - Grundstück mit begonnener Bebauung und Meerblick

400.000 €

ISTRIEN, BUJE - Grundstück mit begonnener Bebauung und Meerblick ISTRIEN, BUJE – Baugrundstück mit Meerblick

Die mittelalterliche Stadt Buje liegt im Nordwesten der istrischen Halbinsel auf einem Hügel mit herrlichem Blick auf das Meer, die umliegenden Hügel, Weinberge und Olivenhaine, für die die Region bekannt ist. Die Nähe zum Meer, das mediterrane und milde Kontinentalklima, die lange Tradition in Landwirtschaft, Jagd und Tourismus, die hügelige Landschaft und die unberührte Natur machen die Gegend um Buje zu einer der attraktivsten Regionen Istriens.

Nahe Buje, in einem kleinen Ort, der als wahres Paradies für Feinschmecker und Genießer gilt, steht ein Baugrundstück mit Baugenehmigung und Meerblick zum Verkauf. Das Grundstück liegt am Rande eines beschaulichen Weilers auf einem Hügel und bietet ein authentisches Erlebnis einer kleinen istrischen Stadt – Ruhe und Erholung vom Alltagstrubel, gleichzeitig aber auch die Nähe zu den dynamischen Städten Istriens mit ihren vielfältigen Annehmlichkeiten.

Das Katastergrundstück ist relativ regelmäßig rechteckig, das Gelände sanft abfallend und sauber. Strom-, Wasser- und Telekommunikationsanschlüsse befinden sich in unmittelbarer Nähe.

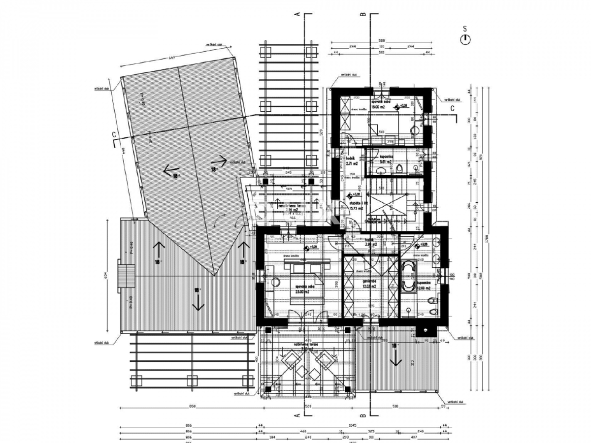
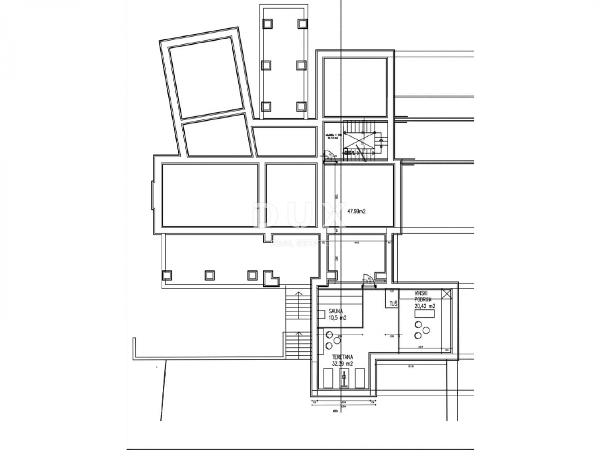
Für das Grundstück liegt eine gültige Baugenehmigung für ein Wohnhaus vor, das sich mit seinem Erscheinungsbild und Stil harmonisch in die bestehende Umgebung, die Landschaft und den Swimmingpool einfügt.

Es ist als komfortables Einfamilienhaus mit einer Wohneinheit auf drei Etagen geplant: Keller, Erdgeschoss und Obergeschoss.

Der Bau wurde bereits angemeldet und begonnen; der Poolrohbau ist fertiggestellt und die Vorbereitungen für die Betonierung des Fundaments sind abgeschlossen.


Aufgrund seiner Mikrolage am Ortsrand und am Rande der Bauzone mit Panoramablick auf die sanften Hügel, das Mirna-Tal und das Meer, seiner Beschaffenheit, der klaren Eigentumsverhältnisse und der vollständigen Dokumentation bietet dieses Grundstück eine außergewöhnliche Gelegenheit für den Bau eines Einfamilienhauses oder Ferienhauses.

Sehr geehrte Kunden, die Vermittlungsprovision wird gemäß den Allgemeinen Geschäftsbedingungen berechnet:

www.dux-nekretnine.hr/opci-uvjeti-poslovanja

REC ID: 1285968

Merkmale

  • 1543 m2
  • 17000 m vom Meer
  • Mit Meerblick

Agentur

Agenturlogo

DUX Nekretnine

Makler

Tony Jerković

Mobil: 051518174

Agencija logo
+
=
REC Kuće Biz
Dogma LUXURY ESCAPE
Bonum Real Estate Croatia
Opatia Riviera Real Estate by SmartInvest
Terra Dalmatica Real Estate
IMMO - real estate agency Split
Kaiser Immobilien Opatija
Search for you